buy now $465,000 For Sale

3 / 3 Bulteel Street, City Centre
Contact for price
Townhouse
  • 1 Beds
  • 1 Baths
  • 1 Car Spaces
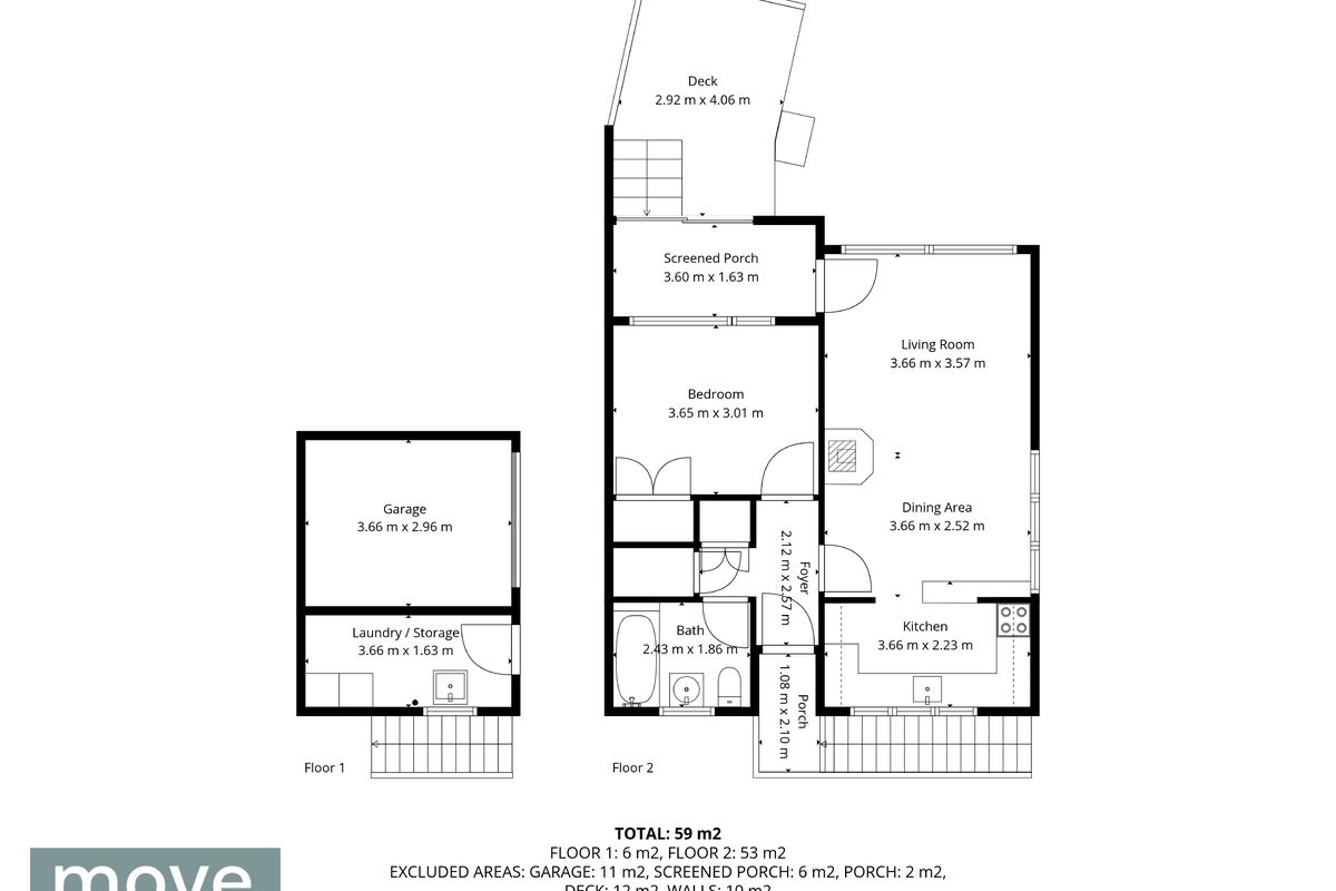
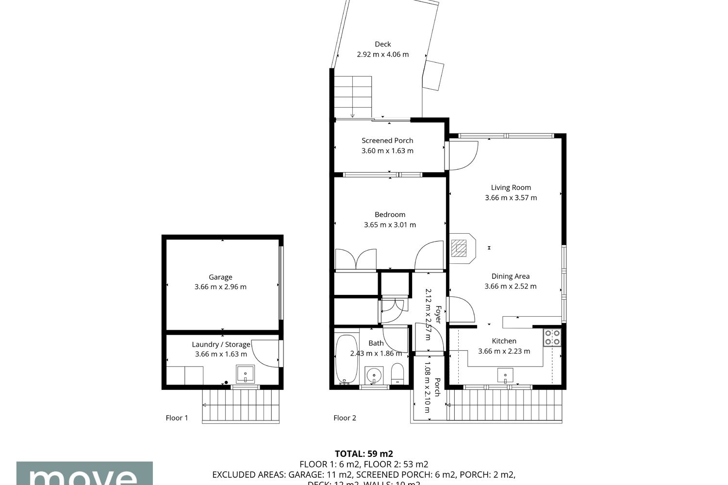
  • 90 Square metres

Description

The vendor is motivated and ready to move — so if you’ve been looking for an easy city lifestyle or a solid investment, now’s the time.

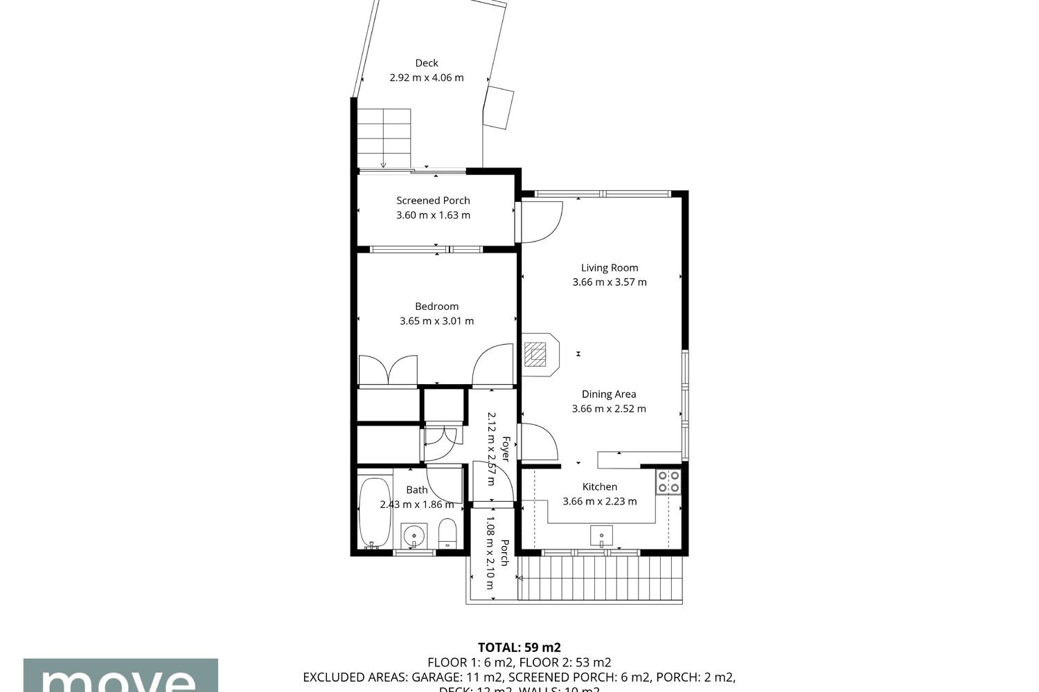
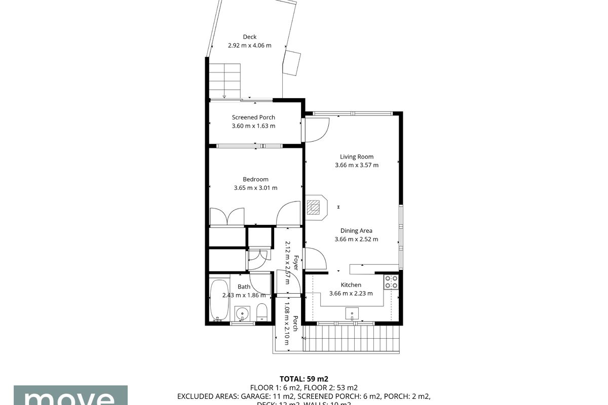
Set just minutes from the city centre, 3/3 Bulteel Street offers effortless living in a tidy, elevated home with both sea and mountain views. Inside, the open-plan layout feels spacious and bright, with high ceilings, neutral tones, and a cosy wood burner for winter warmth. The sunroom and deck catch beautiful light throughout the morning, while the generous bedroom and well-planned kitchen make life simple and comfortable.

With a big single garage, storage, and a low-maintenance section, this property is all about convenience and comfort. The owners are keen to wrap this up before Christmas — don’t miss your chance to secure it.

Contact Darrell 0274 937 134 or Riley 027 441 6308 to arrange a viewing today. Further information, including the floorplan, council records, a property information pack, title information, and a S&P Guide can be found on the bestmove website.

Floorplans

Floor Plan 1

Location